Publiée le : 03/03/2026 Vu le : 20/03/2026

Professionnel

Créer une alerte

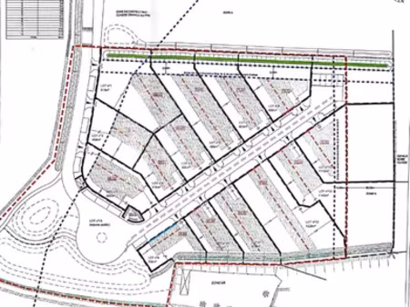
FRANCE SEINE MARITIME , VALMONT , 76540

contacter le vendeur :

Conseillez cette annonce à vos amis !

oups........ vérifiez votre saisie !

* Insérez plusieurs adresses e-mail séparés par une virgule.
Je ne conserve pas les emails renseignés sur ce formulaire, j'ai déjà assez d'amis.

Merci !

Votre message a bien été envoyé.

Vous aimerez peut-être...

Une sélection dans votre budget

L’Igloo vous propose une sélection de biens dans votre budget qui pourraient vous intérésser.

VENTE

MAISON

THORIGNE SUR DUE

entre 200 000 € et 400 000 €

Détail

VENTE

MAISON

MELAGUES

entre 200 000 € et 400 000 €

Détail
Craquez pour une nouvelle voiture !

Voici une sélection de véhicules qui pourraient vous intéresser. Rendez-vous sur notre moteur de recherche dédié aux voitures : www.leparking.fr

Quoi de neuf dans ligloo

Décorations

De toutes les couleurs

Comment Gagner de la place pour decorer son interieur avec élégance

SUIVEZ-NOUS !

Astuces

Manque d'espace ?

maxi-idées pour mini-apparts

En savoir plus
Merci !

Nous allons traiter votre demande et revenir vers vous au plus vite

Revenir à ma recherche

Signaler l'annonce
A propos de vous

Merci de cocher le type de problème rencontré*

Informations supplémentaires*

Envoi du message en cours .......

Créer
Une alerte
Cher utilisateur,

ne ratez pas le bien de vos rêves, poser une alerte sur l'igloo vous permet d'accéder aux nouveautés de plusieurs dizaines de sites!

Choisir la fréquence de vos emails

Vos critères

  • Catégorie : VENTE
  • Type de bien : TERRAIN A BATIR
  • Prix : Tout
  • Surface : Entre 520 et 780 m²
  • Localisation : VALMONT
  • Terrain : Tout
  • Type d'annonce : Tout
Nous proposons également des offres sur-mesure pour les professionnels, alertes avancées, données de marché, visibilité... N’hésitez pas à nous contacter pour plus d’informations
Bravo !
Votre alerte a bien été crée

Mes alertes

ne ratez plus aucune annonce

Retrouvez ici l’ensemble des alertes actives disponibles sur votre compte. Vous pouvez les supprimer

Ne ratez pas le bien de vos rêves. Cliquer sur le bouton « créer une alerte » lors de votre recherche et renseigner votre email. That's all folks !

Alertes actives

Gérer et consultez toutes vos alertes

Critères Dernière alerte Dernier email. 1 jour 7 jours 30 jours

Calcul des résultats

Votre alerte ()

- Dernier email.

@_alerts.inscription.creer.compte

@_alerts.inscription.titre

@_alerts.inscription.texte.part1
@_alerts.inscription.texte.part2

Découvrir l’alerting

Lancez vous, créez votre première alerte !

Ne ratez pas le bien de vos rêves.

3 bonnes raisons de sourcrire à l’alerting :

  • 1Recevez un mail dès que des nouvelles annonces correspondant à vos critères sont disponibles.
  • 2Poser une alerte sur ligloo revient à poser une alerte sur des dizaines de sites.
  • 3C'est gratuit !

L'IGLOO est un moteur de recherche de biens immobiliers. Il recense plus de 3 millions d'annonces en France et en Belgique. N'hésitez pas à utiliser L'IGLOO pour trouver l'appartement ou la maison de vos rêves. Vous pourrez naviguer parmi l'ensemble des annonces du moteur et filtrer vos résultats via divers critères pertinents : type de bien , caracteristiques ,surface ,nombre de pièces, etc. L'IGLOO propose également un espace professionnel pour les spécialistes de l'immobilier. Cet espace, L'IGLOO Stats, donne accès aux statistiques du secteur de la vente de biens sur internet : prix de vente moyen, durée de vie des annonces et beaucoup d'autres indicateurs pertinents, le tout pouvant être segmenté par type ,surface , departement, ville. Utilisez L'IGLOO pour vos recherches immobilières, et n'hésitez pas à nous faire vos retours.

Mes favoris (0)

Retrouvez toutes vos annonces préférées et modifiez votre sélection en quelques clics

Date de Parution
  • Date de Parution
  • Prix croissant
  • Prix décroissant
  • Distance
Aucun
  • Aucun
  • Très très intéressant
  • Très intéressant
  • Un peu intéressant
  • A contacter
  • Confirmé
Je ne trouve aucun bien
«»

Utilisez les boutons situés au-dessus de vos annonces favorites
pour leur assigner un label et organiser vos annonces préférées.
Vous n’avez tout simplement pas trouvé un bien à la hauteur
de vos espérances ? Faites une nouvelle recherche !

Cette fois ci c'est la bonne